
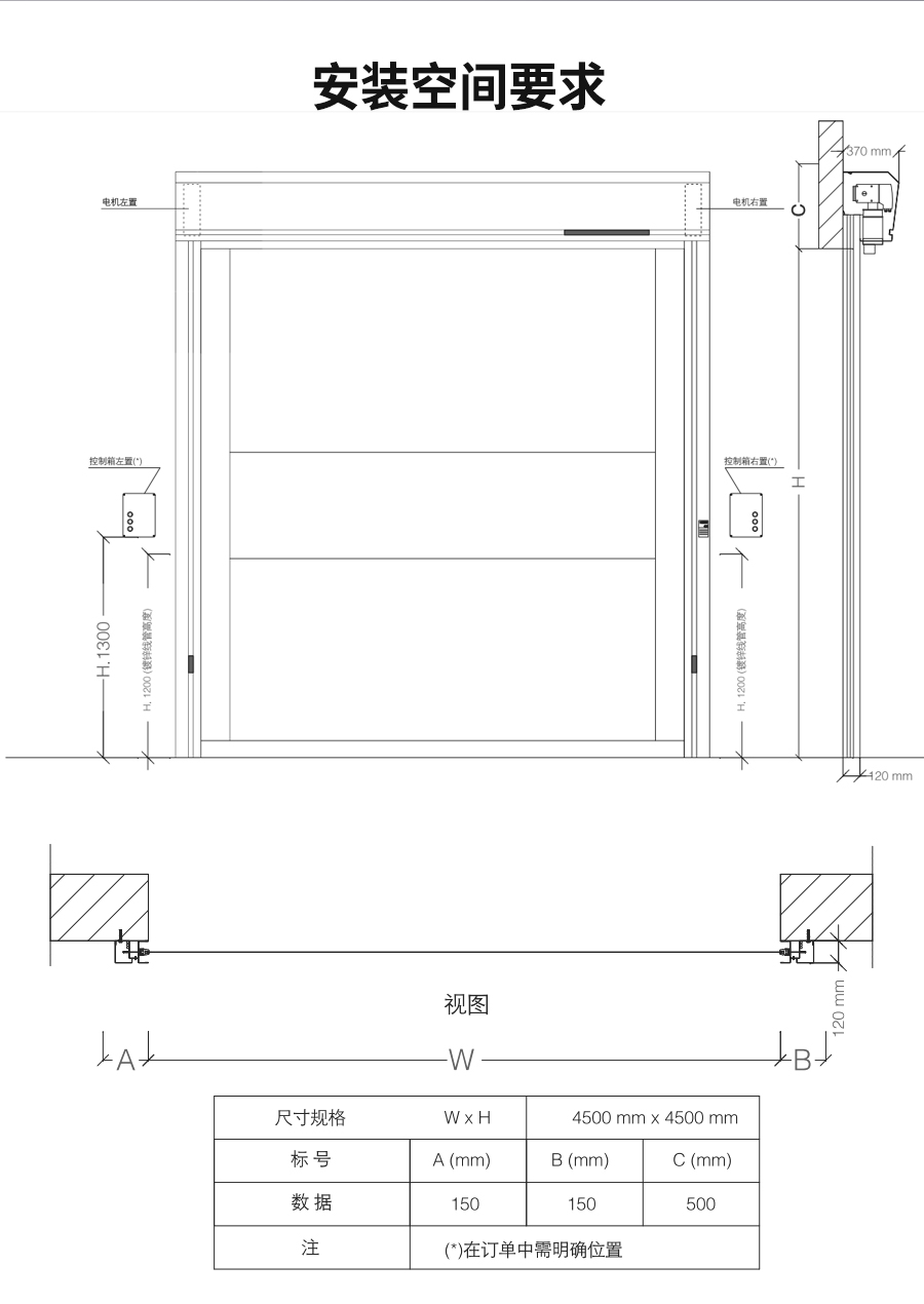
硬質快速門
鋁合金硬質快速門——集快速、節能、密封、高效、抗風、環保于一身的新型金屬工業門,擁有很高的可靠性和實用性,其運行速度是工業滑升門的6倍以上,憑借極高的工作效率,更高的安全性,硬質快速門正在逐漸替代工業滑升門。
服務熱線:150-0079-0988
硬質渦輪快速門--集保溫、節能、密封、高效、抗風、環保于一身的新型金屬工業門,開啟速度快速安全,適用于需要頻繁高速的物流通道、倉儲、恒溫廠房、冷庫等需要快速開關門減少流量的廠房內。該門型適用于室內外物流及生產的快速通道。采用該門型能為企業節約大量因空氣流通而產生能量損耗,比普通工業滑升門、卷簾門節約能源約 180%左右。該門型的快速開啟和關閉使企業在生產及物流的轉運速度得到極大的提高,門是企業物流及生產的必經通道,它的使用與選型直接關系著企業生產及物流的效率。本產品具有很高的可靠性、實用性、易操作及快速修復等特性。驅動控制采用了穩定、節能、準確的伺服系統來保障門體的可靠運行,可確保每年需要的無故障運行達10萬次以上。